
COMMUNITY HOUSE BRUNNENSTRASSE
COMMUNITY HOUSE BRUNNENSTRASSE
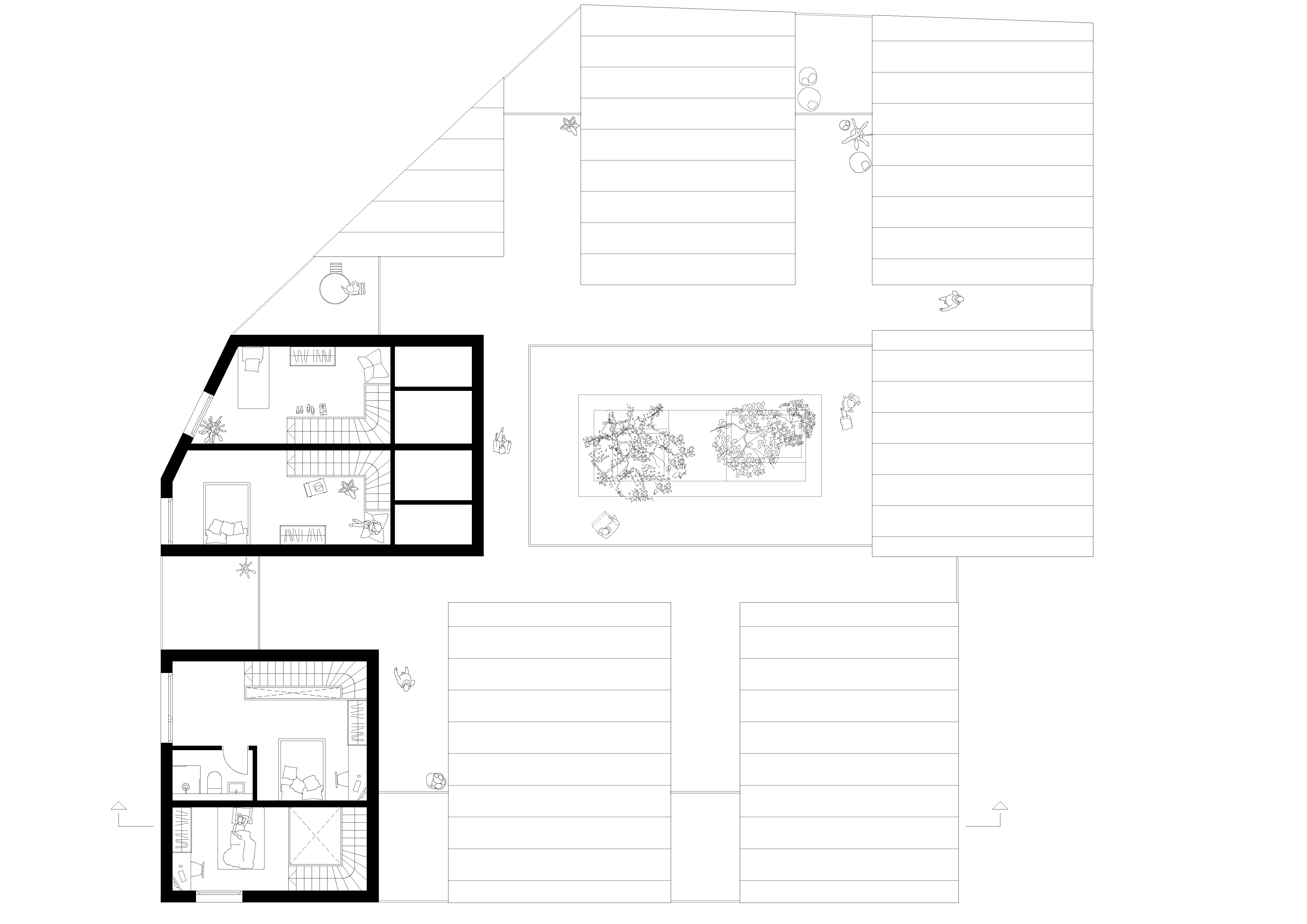
Located at the intersection of Brunnenstrasse and Eselspfad in Bad Wildungen’s vibrant heart, this building is designed to serve both public and private purposes, fostering community and connection. The ground floor hosts a lively café and shop, creating a welcoming space for residents and visitors alike. Large windows ensure transparency, blurring the lines between interior and street, and reinforcing the building’s role in the urban fabric. Above, the upper levels feature apartments arranged around a shared courtyard, which serves as a central meeting point, encouraging social interaction and offering a peaceful green retreat. Views of the surrounding landscape enhance the living experience, connecting residents with the charm of the spa town, Bad Wildungen. The apartments prioritize various sizes for different income groups, with carefully placed niches and terraces that offer private outdoor spaces and engage with the broader environment. These elements create rhythm in the façade, ensuring each unit benefits from natural light, cross ventilation, and scenic views. The building’s façade exudes timeless character, complementing the area’s historic context and highlighting craftsmanship and durability.
Located at the intersection of Brunnenstrasse and Eselspfad in Bad Wildungen’s vibrant heart, this building is designed to serve both public and private purposes, fostering community and connection. The ground floor hosts a lively café and shop, creating a welcoming space for residents and visitors alike. Large windows ensure transparency, blurring the lines between interior and street, and reinforcing the building’s role in the urban fabric. Above, the upper levels feature apartments arranged around a shared courtyard, which serves as a central meeting point, encouraging social interaction and offering a peaceful green retreat. Views of the surrounding landscape enhance the living experience, connecting residents with the charm of the spa town, Bad Wildungen. The apartments prioritize various sizes for different income groups, with carefully placed niches and terraces that offer private outdoor spaces and engage with the broader environment. These elements create rhythm in the façade, ensuring each unit benefits from natural light, cross ventilation, and scenic views. The building’s façade exudes timeless character, complementing the area’s historic context and highlighting craftsmanship and durability.


Location
Bad Wildungen, Waldeck-Frankenberg, Germany
Typology
Residential, working, retail, café
Client
Sparkasse Waldeck-Frankenberg
Area
2.500 sqm
Year
2022-2024
Status
Completed
Material
Bricks, plants
Collaboration
Local community
Photographer
Laurian Ghinitoiu











COMMUNITY HOUSE BRUNNENSTRASSE
COMMUNITY HOUSE BRUNNENSTRASSE
Located at the intersection of Brunnenstrasse and Eselspfad in Bad Wildungen’s vibrant heart, this building is designed to serve both public and private purposes, fostering community and connection. The ground floor hosts a lively café and shop, creating a welcoming space for residents and visitors alike. Large windows ensure transparency, blurring the lines between interior and street, and reinforcing the building’s role in the urban fabric. Above, the upper levels feature apartments arranged around a shared courtyard, which serves as a central meeting point, encouraging social interaction and offering a peaceful green retreat. Views of the surrounding landscape enhance the living experience, connecting residents with the charm of the spa town, Bad Wildungen. The apartments prioritize various sizes for different income groups, with carefully placed niches and terraces that offer private outdoor spaces and engage with the broader environment. These elements create rhythm in the façade, ensuring each unit benefits from natural light, cross ventilation, and scenic views. The building’s façade exudes timeless character, complementing the area’s historic context and highlighting craftsmanship and durability.


Location
Bad Wildungen, Waldeck-Frankenberg, Germany
Typology
Residential, working, retail, café
Client
Sparkasse Waldeck-Frankenberg
Area
2.500 sqm
Year
2022-2024
Status
Completed
Material
Bricks, plants
Collaboration
Local community
Photographer
Laurian Ghinitoiu









